
UPDATED:
Key Details
Property Type Other Types
Sub Type Manufactured Home
Listing Status Active
Purchase Type For Sale
Square Footage 1,791 sqft
Price per Sqft $147
Subdivision Classic Hills Unit 2
MLS Listing ID OM714279
Bedrooms 4
Full Baths 2
HOA Y/N No
Year Built 2025
Annual Tax Amount $323
Lot Size 0.750 Acres
Acres 0.75
Property Sub-Type Manufactured Home
Source Stellar MLS
Property Description
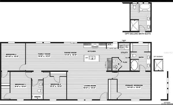
Step inside and be greeted by an open-concept layout that seamlessly connects the living room, dining room, family room, and kitchen—perfect for entertaining or enjoying cozy nights at home. The chef-inspired kitchen features a large center island, ample cabinetry, and premium finishes that make both cooking and hosting a delight.
Designed for privacy, the split-bedroom floor plan places the primary suite on one side of the home, complete with a luxury bathroom featuring double sinks and generous closet space. The secondary bedrooms are spacious and well-appointed for family members or guests.
Additional highlights include:
* Inside utility/laundry room
* Stylish and durable finishes throughout
* Energy-efficient construction
* Plenty of room to grow, garden, or add outdoor amenities
Situated on close to 1 acre, you'll enjoy wide-open space with endless outdoor possibilities—bring your toys, pets, gardens, and dreams!
This beautiful home offers the perfect blend of peaceful living and modern convenience. Don't miss your chance to make it yours—schedule your showing today!
**All measurements are approximate. Buyer or Buyers Agent to verify all MLS Information
Location
State FL
County Marion
Community Classic Hills Unit 2
Area 34481 - Ocala
Zoning R4
Interior
Interior Features Kitchen/Family Room Combo, Split Bedroom, Walk-In Closet(s)
Heating Electric
Cooling Central Air
Flooring Laminate
Furnishings Unfurnished
Fireplace false
Appliance Dishwasher, Range, Refrigerator
Laundry Inside
Exterior
Exterior Feature None
Utilities Available Electricity Connected
Roof Type Shingle
Garage false
Private Pool No
Building
Entry Level One
Foundation Crawlspace
Lot Size Range 1/2 to less than 1
Sewer Septic Tank
Water Well
Structure Type Vinyl Siding
New Construction false
Others
Senior Community No
Ownership Fee Simple
Acceptable Financing Cash, Conventional, USDA Loan, VA Loan
Listing Terms Cash, Conventional, USDA Loan, VA Loan
Special Listing Condition None
Virtual Tour https://www.propertypanorama.com/instaview/stellar/OM714279

Learn More About LPT Realty




